
开关柜满足IEC298、GB3906等标准要求,设有完善的联锁结构,以保证操作程序本身的正确性和操作者的人身安全。具有防止带负荷推拉断路器手车、防止误分误合断路器、防止接地开关处在闭合位置时关合断路器、防止误入带电间隔、防止带电时误合接地开关等“五防”联锁功能。其目的在于防止误操作和误并列,防误联锁装置实现闭锁的方式应是强制性的,装设联锁后,就可以保证必须按规定的操作顺序进行操作,否则就无法进行,从而有效地防止了误操作。一般不提倡采用提示性的,因为在误操作的某些情况下,一般形式的提示会引起误解或不被注意、领会。因而不如强制性的机械闭锁更直接、更有效。
开关柜的各类防误联锁随其型号、结构的不同而有不同的构造或传动形式,但究其本质来说,万变不离其宗,即不脱离于“五防”的要旨。
根据联锁装置的工作原理,主要分机械联锁和电气联锁两大类。防误联锁装置的结构应尽量简单、可靠,操作、维修方便,尽可能不增加正常操作和事故处理的复杂性,不影响开关的分、合闸速度特性,也不影响继电保护及信号装置的正常工作。为此,要优先选用机械类联锁装置,当采用机械闭锁无法实现时,可以采用电气类联锁装置。如采用电气类联锁装置时,其电源要与继电保护、控制、信号回路分开敷设。
一、 械联锁装置
1.挡柱(销)类,如CS6—18的位置锁定销;
2.连板、拉杆类,如辅助开关、接地开关、隔离开关的传动;
3.钢丝类,如KYN
4.挡板类,如各类操作条件(孔)的封闭;
5.程序锁类。属于操作条件的程序闭锁。
二、 电气联锁装置
1.电磁锁类,属于电气式强制闭锁;
2.辅助接点互锁,属于运行程序、位置、条件的闭锁;
3.位置联锁,属于工作条件的闭锁。
三.主动式联锁与被动式联锁
对于“五防”中的每项联锁要求,无论是固定柜还是手车柜,尽管其柜型、二次方案存
在多样化,但都可以设计出各种方案来实现联锁功能。归纳起来,机械联锁主要有两种形式,
即主动式和被动式。
所谓“主动式联锁”是指在该种联锁状态下,若无正常的解锁条件,不会被解锁,从而保证误操作根本无法执行。例如当断路器处于合闸位置时,机械上应保证隔离开关或隔离插头被闭锁而无法操作,即使错误操作也不会产生不良影响。“被动式联锁”是指在该种联锁状态下,可能由于非正常原因,出现解锁条件,使闭锁解锁。如在闭锁状态下操作隔离开关或推拉手车,虽然隔离开关尚未动作或隔离插头没有产生位移,但由于联锁停电时,先断开线路侧隔离开关;在送电时,要先合上母线侧隔离开关。其作用是为了保证在万一发生错误操作时,能借助于断路器的保护作用尽量缩小事故范围,避免人为扩大事故。停电时先断开线略侧隔离开关的理由是:如果停电中发生误操作,如断路器尚未断开电源,而先分隔离开关,造成带负荷拉闸;或者当分隔离开关时,又错分了不应停的线路隔离开关,都将引起弧光短路。在上述情况下,如果先分线路侧隔离开关,由于弧光短路在断路器外侧,因开关保护设置的存在,将使断路器分闸,从而使故障引弧被隔离在线路侧 。
四.现代微机五防与电气防误技术比较
微机五防技术的原理与应用。微机五防是一种采用计算机技术,用于高压开关设备防止电气误操作的装置。通常主要由主机、模拟屏、电脑钥匙、机械编码锁等功能元件组成。现行微机防误闭锁装置闭锁的设备有断路器、开关、地线(地线开关)、遮栏网门(开关柜门),上述设备是通过微机锁具(电编码锁和机械编码锁)实现闭锁的,对上述设备须由软件编写操作闭锁规则。
电气防误闭锁回路是一种现场电气联锁技术,主要通过相关设备的辅助接点来实现闭锁。这是电气闭锁最基本的形式,闭锁可靠。但这种方式需要接入大量的二次电缆,接线方式较为复杂,运行维护较为困难。
微机五防系统一般不直接采用现场设备的辅助接点,接线简单,通过五防系统微机软件的规则库和现场锁具实现防误闭锁。
电气闭锁回路一般只能防止断路器、隔离开关和接地开关的误操作,对误入带电间隔、接地线的挂接(拆除)等则无能为力,不能实现完整的"五防"。
五.移开式金属封闭开关设备的“五防”联锁
5.1手车位置与断路器的联锁

手车位置与断路器的联锁

断路器的电气闭锁

断路器手车的断开位置/试验位置
5.2手车位置与接地开关的联锁
5.3手车位置与二次插头的联锁
只有当手车处于试验位置时才能插拔二次插头。手车离开断开位置/试验位置后,在向工作位置推进的过程中和达到工作位置以后,不能拔开二次插头。如图。

手车位置与二次插头的联锁
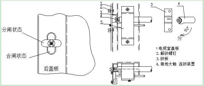
5.4接地开关与电缆室盖板间的联锁
只有当接地开关处于关合状态时,开关柜的电缆室后封板才能打开。只有在电缆室的后封板封闭时接地开关才可以打开。反之,此类反闭锁装置使得安装电缆室后盖板之前,接地开关必须处于合闸状态。否则,安装将无法进行。如图所示。

接地开关与电缆室盖板间的联锁

接地开关合闸以后,才允许打开盖板;盖好盖板以后,才允许接地开关分闸。否则,将造成人为事故的隐患!!!
六.固定式金属封闭开关设备的“五防”联锁
对于没有可移开部件而装有隔离开关的封闭开关设备,只有当与之相关的断路器、负荷开关或接触器处于分闸位置时,隔离开关才可以操作;只有当相关的隔离开关处于合闸、分闸或接地位置时,断路器、负荷开关、或接触器才可以进行操作。若接地开关、负荷开关的短路关合能力小于该回路的额定动稳定电流时,应与有关隔离开关及断路器联锁。
七.SF6封闭组合电器的“五防”联锁要求
对于高压SF6封闭组合电器,除应满足上述要求外,还需控制SF6气体的压力(或密度)。确保断路器和其它元件工作气室的气压值低于允许值时,不能进行操作并发出报警信号。如果隔离开关装有活动金属屏障,则在触头与金属屏障之间也应设置联锁。如果是附带熔断器的组合电器,还应该有熔断器的断相闭锁。此外,对于在维修工作期间保证安全隔离的断口,必须保证不会重合,而接地开关必须保证不自分。
附:八.带电显示装置
开关柜内可设带电显示装置,以监测一次回路运行情况。该装置还可以与电磁锁配合,实现强制闭锁操作手柄、按钮、网门等操作要素,从而强化产品的防误性能。如图所示。

带电显示装置
附:九.防止凝露和腐蚀
9.1为了减少在高湿度或温度变化较大的气候环境中产生凝露带来的危害,断路器手车室和电缆室内分别装设加热器,以使在上述环境中防止凝露和腐蚀发生。一般采用板式发热原件,导线联接处的线芯应加磁套管,50W以上加三个磁套管,50W以下加两个磁套管。线束敷设时,与发热元件或电阻元件间的距离应大于

图21 加热器的线束敷设
9.2带有翅片的气体冷却散热体(加热器)应使翅片垂直安装,除非结构所限,一般不允许水平安装,见图。

加热器的翅片安装
- 上一篇:配电线路运行中的常见故障
- 下一篇:开关电源设计核心环节:如何避免米勒振荡?

地址:绵阳市经开区贾家店街119号 电话:0816- 6394069 传真:0816-2302305 访问题:1337109次








您的位置: